Fisher Kitchen Design

Below are several design options all with the same material finishes. I have used light oak flooring, white oak base cabinets with painted Benjamin Moore Pale Oak uppers and White Dove on the walls. Below these options I have shown different colour for you to consider. All are quite timeless neutral colours that you won’t tire of.

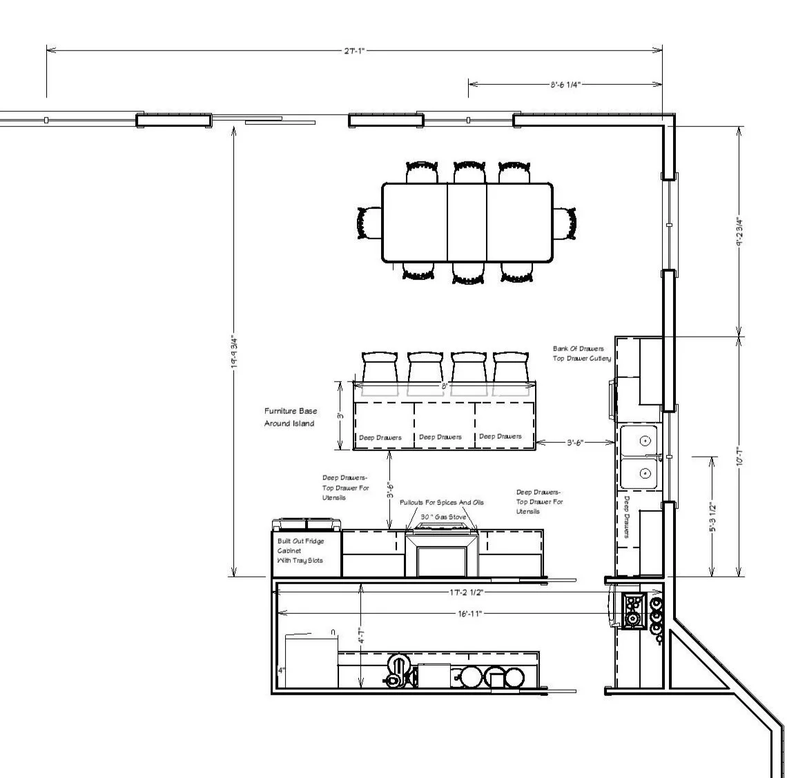
Option A

This option features double upper cabinets that reach the ceiling, topped with a small trim instead of crown molding. The fridge is built in with panels on each side. A simple wood hood creates a nice focal point from the dining room. The island has three sets of large, deep drawers for plenty of storage and is finished with a furniture-style base instead of a toe kick.

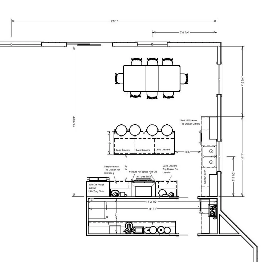
Option B

This option is similar to the last one but adds simple crown molding at the top. The island has a foot rail instead of a plain furniture base.

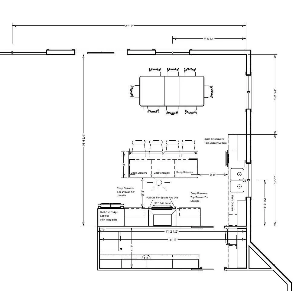
Option C

This option has a simple 2 1/2 inch square crown at the top of the cabinets. A large oversized wood hood with built in shelves that go to the counter to house spices and oils. You could consider doing a different tile behind the stove to add detail or keep it all simple.

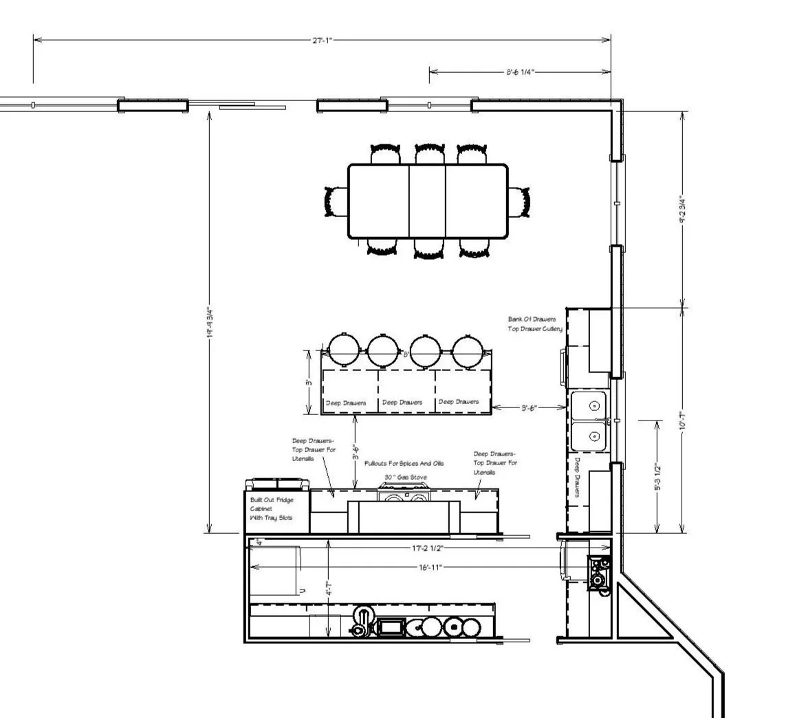
Option D

This option has open shelves on either side of the wood hood which breaks up the cabinetry. This would also lower the cabinetry cost it will just depend if you like open shelving.

Option E

This show shelves on either one or both sides of sink

Colour Options

This option has a warmer wood floor with varying colours, white Dove walls, Pale Oak Cabinets with white oak bases,

This option has a warmer wood floor with varying colours, Pale Oak walls, White Dove Cabinets and Rich Brown stained base cabinets.

Pantry Options

This option has the freezer along the back wall with shelving above.

This option has the freezer on the back wall, you will have to keep enough room on the one side to open the door(usually 4 inches or so) and uppers cabinets hung above with no doors.

Feedback

Let me know what you like and don’t like so I can narrow down your design.