
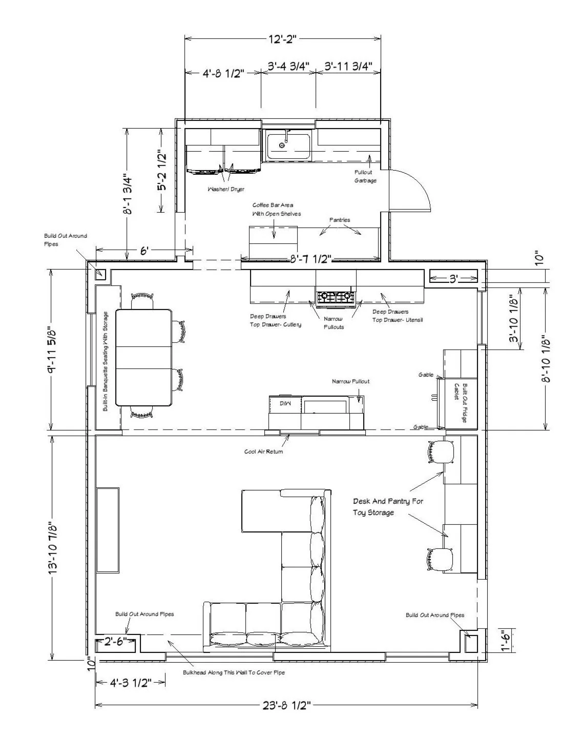
Grant Main Floor Design
Final Design Plans
Optional Blue Island
Kitchen Concept Board
This is a style guide for you to use when you are selecting products. There are links to these products below.
Product Sources- Click on the photo to head to the product page
Elevations
Wall Fully opened up
Keep small wall to house cool air return
Colour Options
White cabinets, subway tile backsplash light quartz or stone counters
White cabinets, colourful backsplash, wood counters
Possible Island Colours
I also thought you may like white cabinets everywhere but we could do the laundry or the island in a blue or grey.