Helwig Office

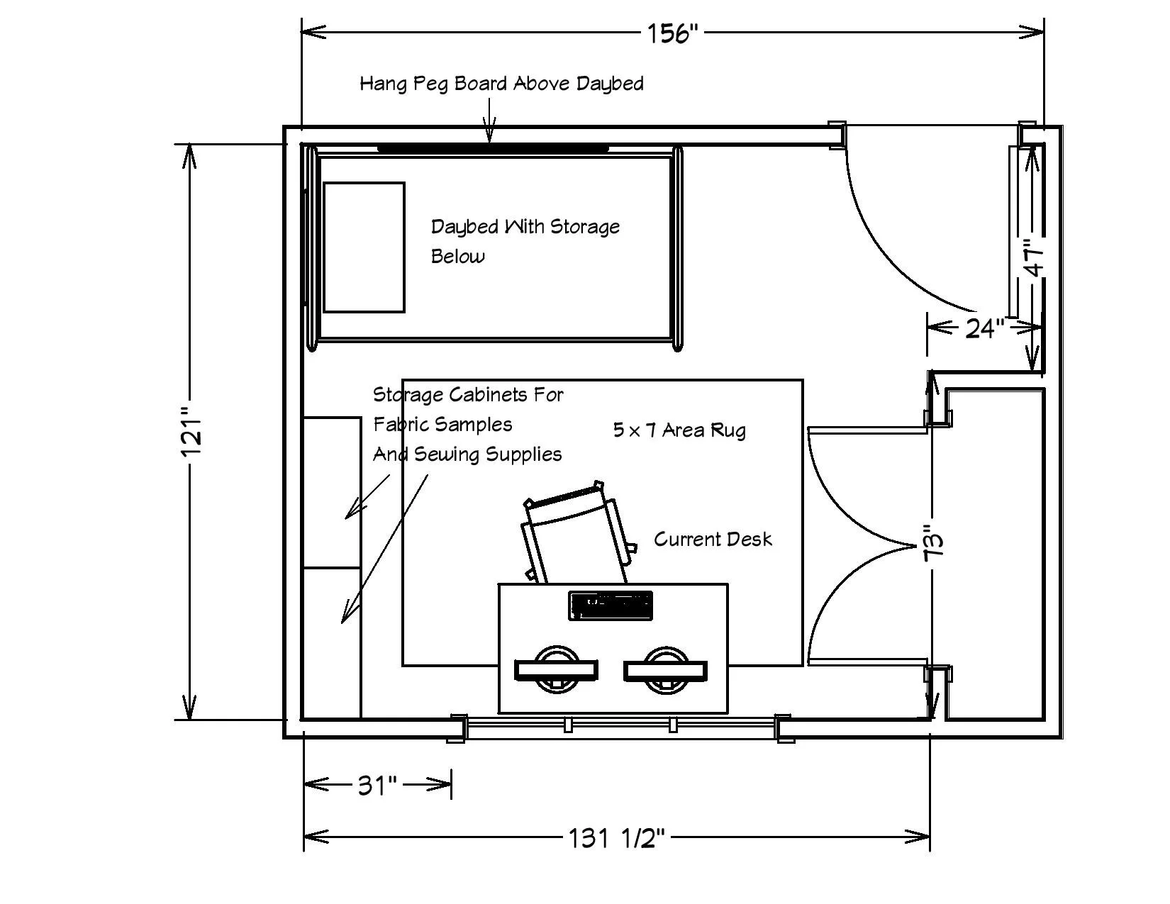
Option A

This option would be a simple, quick update. It keeps your existing desk; we add a small daybed with storage underneath and a couple of bookcases that can house decor as well as your sewing machine and supplies. Adding art above the headboard and your pegboard above the bed will add personality and interest to the space.

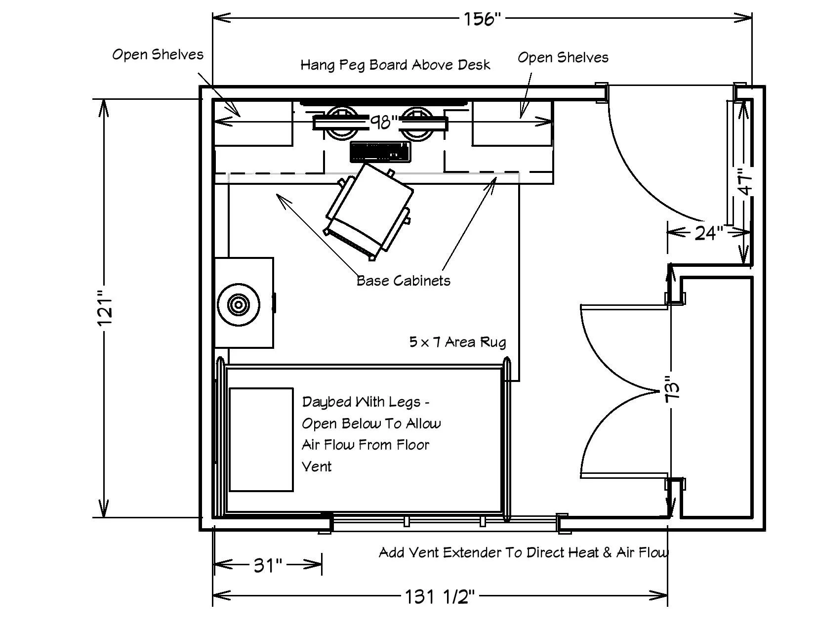
Option B

This option flips the bed and creates a much longer desk with more storage using IKEA cabinets. It allows you to easily pull out your sewing machine to work on projects, then tuck it away again when you need to use your desk. The daybed option I added could have lots of throw pillows added to act as a sofa when not being used by guests.