Butler’s Pantry Laundry Room

Option A

In this option, the fridge is inset into the wall, with an opening to the butler’s pantry and a pocket door into the laundry/mudroom. I have added a small opening into the dining room from the hall for easy access. This allows you to close off the laundry area when needed.

Butler’s Pantry Elevations

Mudroom/Laundry Elevations

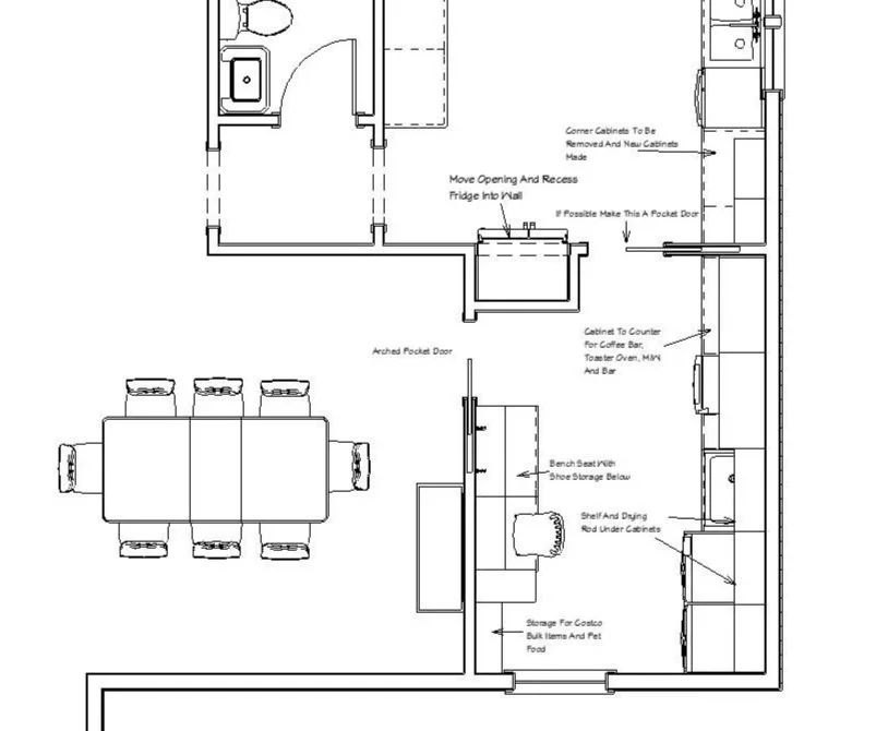
Option B

This option has the fridge inset into the wall with no division between the butler's pantry and laundry room, with an arched pocket door into the dining room. This gives a bit more room, and I have added a small desk area.

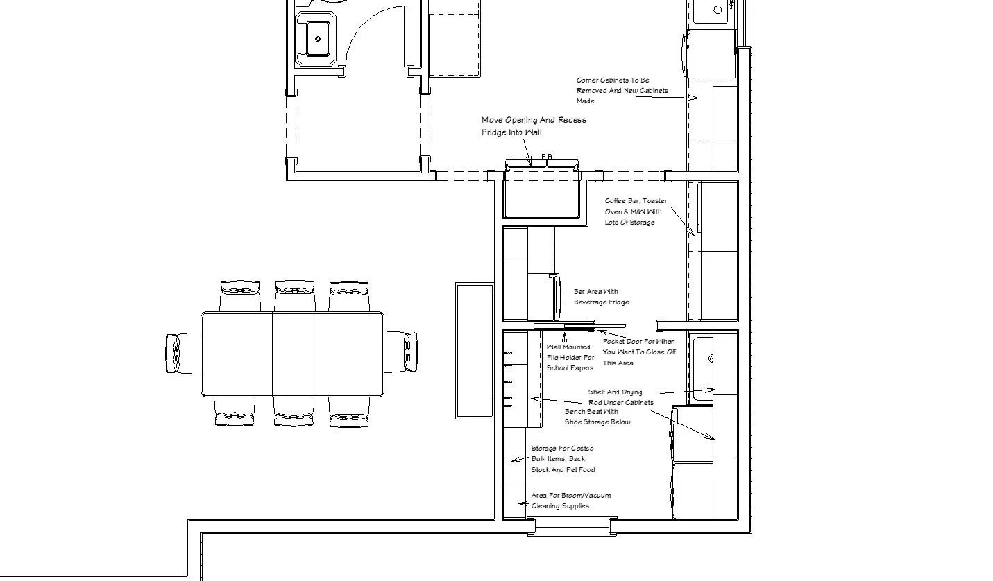
Option C

This option is the same as above, but without a door into the dining room, which allows for more coat/shoe area and storage.

Feedback

Tell me what you like and don’t like about the options. I’ll use your feedback to create a final plan.