Mudroom/Den

Option A

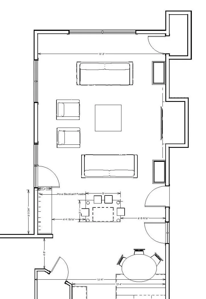
In this option, the island is placed where the wall will come down. We can play with the island design, but I thought we could make this look more like a furniture piece while still connecting it to the kitchen. It could be in a wood tone like the inspirational photo below, or the pretty blue in your kitchen.

The mudroom lockers have open and closed storage.

Mudroom Elevation

If possible, your light switch on that wall could move over to the other side of the door.

Option B

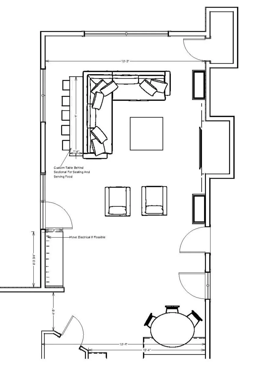
This option offers a different approach. Instead of an island, we can add a custom table with seating. The floor plan shows an L-shaped sectional, but your current sofas would work too. This creates a large open area from the kitchen to the den.

Option C

This option places the island near the room's entrance, with cabinets facing the doors instead of the kitchen, allowing for a longer island. These cabinets would look great in your blue cabinet colour.

In the mudroom, I have all closed cabinets.

Feedback

Tell me what you like and don’t like about the options. I’ll use your feedback to create a final plan.