Johal Basement Design

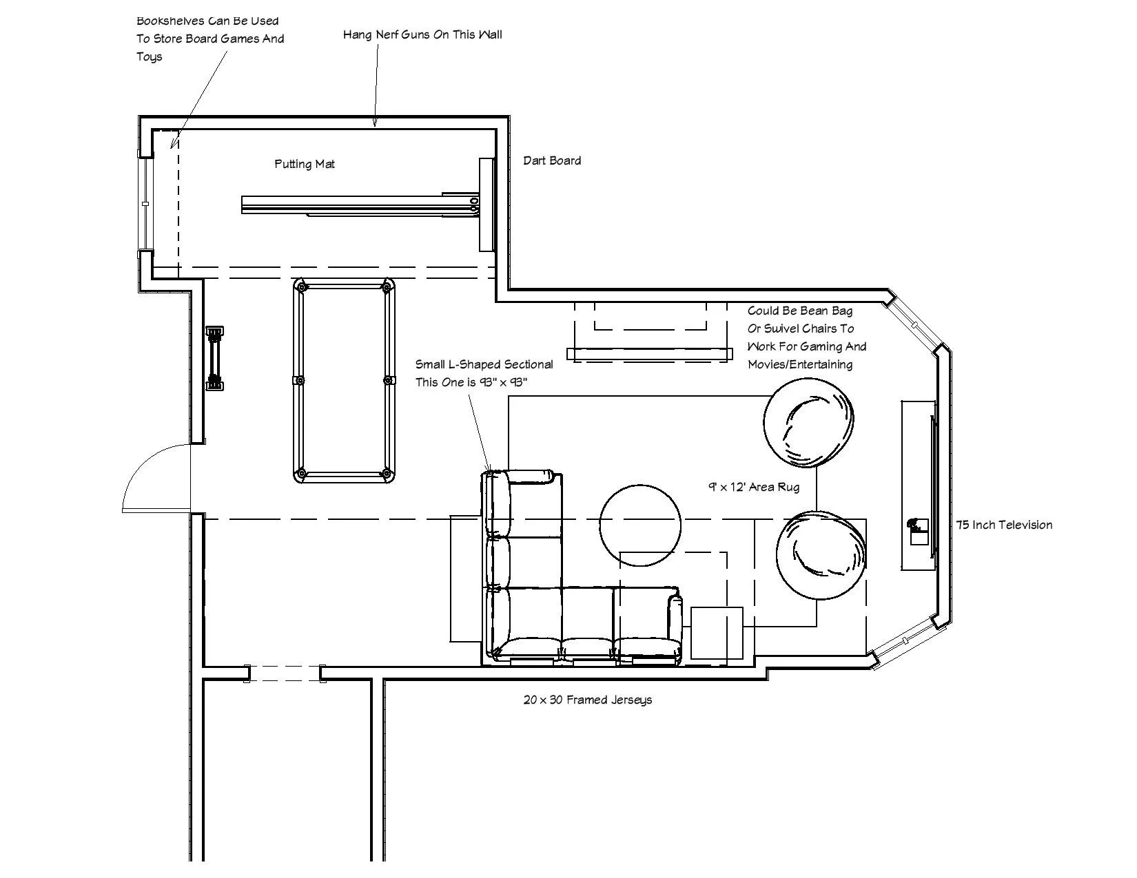
Option A

In this option, there is a small L-shaped sectional with swivel or bean bag chairs in front of a 75 Inch television. The pool table is placed down from the alcove entrance, to give enough room around the table for full-sized pool cues. In the alcove, we keep your bookcases, which can be used to store games and toys. On the back wall of the alcove, I thought you could create a fun moment by hanging Nerf guns on a pegboard. Something like the photos below.

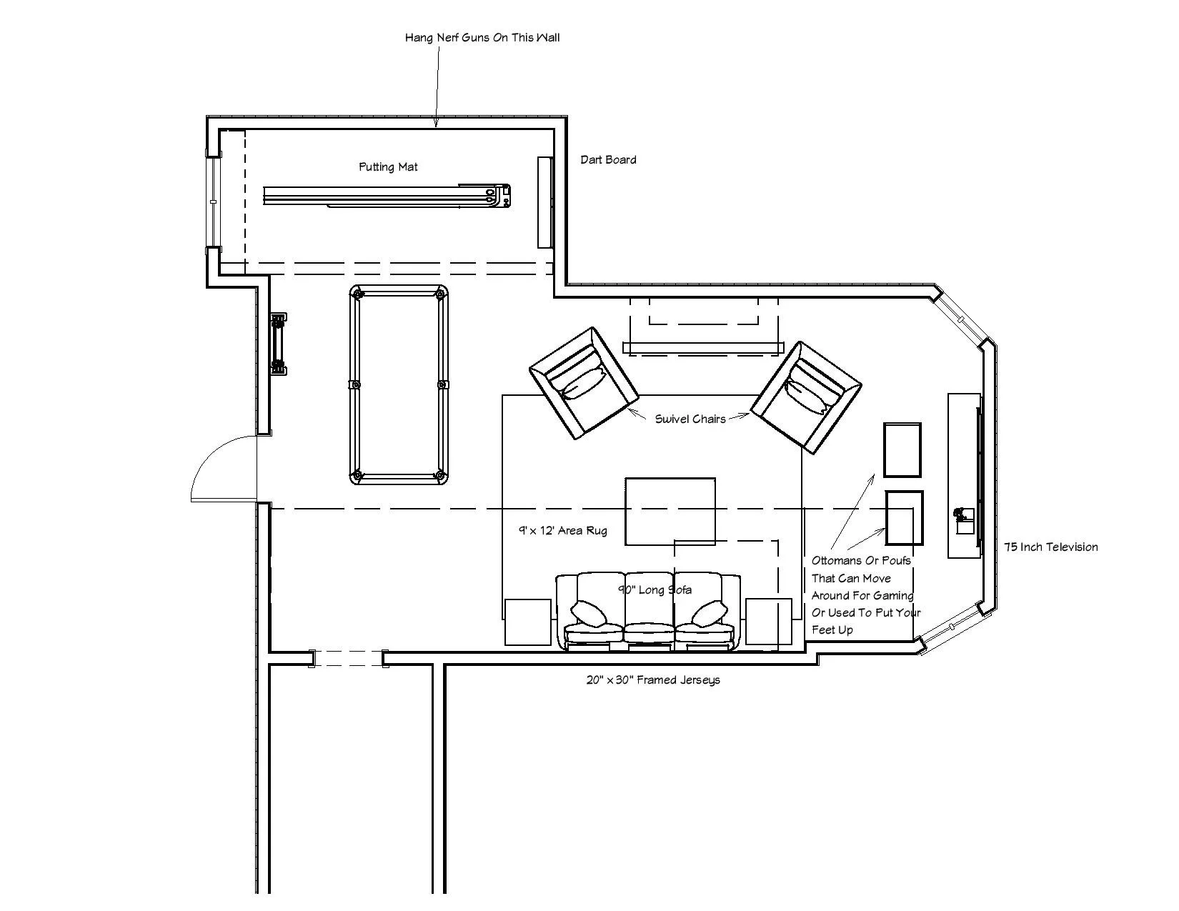
Option B

This option has a sofa instead of a sectional with swivel chairs in front of the fireplace. The rest of the items are placed as above.

Option C

In this option, I have shown a projector instead of a TV, which you could use in any of the options. This would give you a huge viewing area; you would need to put blackout curtains on the windows to prevent glare. I have four swivel chairs in front of the TV with a center table, which would be a great spot to play board games. Moving the pool table to this location gives more room around the table to play properly. Also, not having a sofa or sectional on the back wall allows for large framed jersey prints.