Mathews Bedroom Design

Bathroom Colour Options

Classic black and white

Taupe

Blue And Greens

Revised Shower Locations

Revised Designs

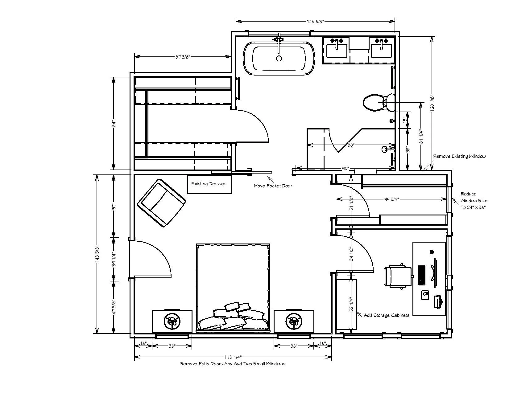
Mathews Bedroom Initial Design

I have two options for you to choose from. The first is similar to what we discussed, and the second has some changes. Below the options, there’s a feedback form where you can tell me what you like, don’t like, and any changes you want.

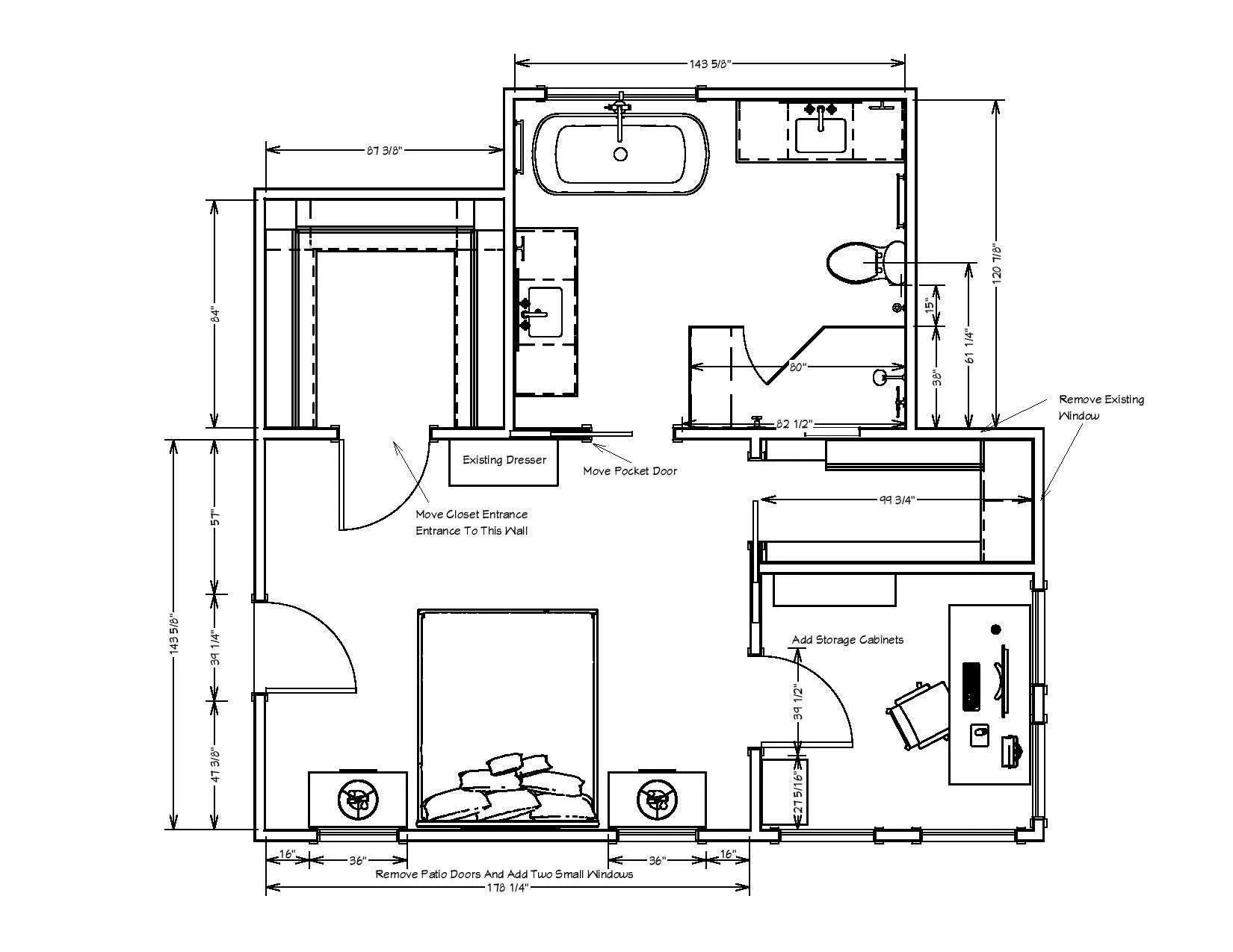
Option A

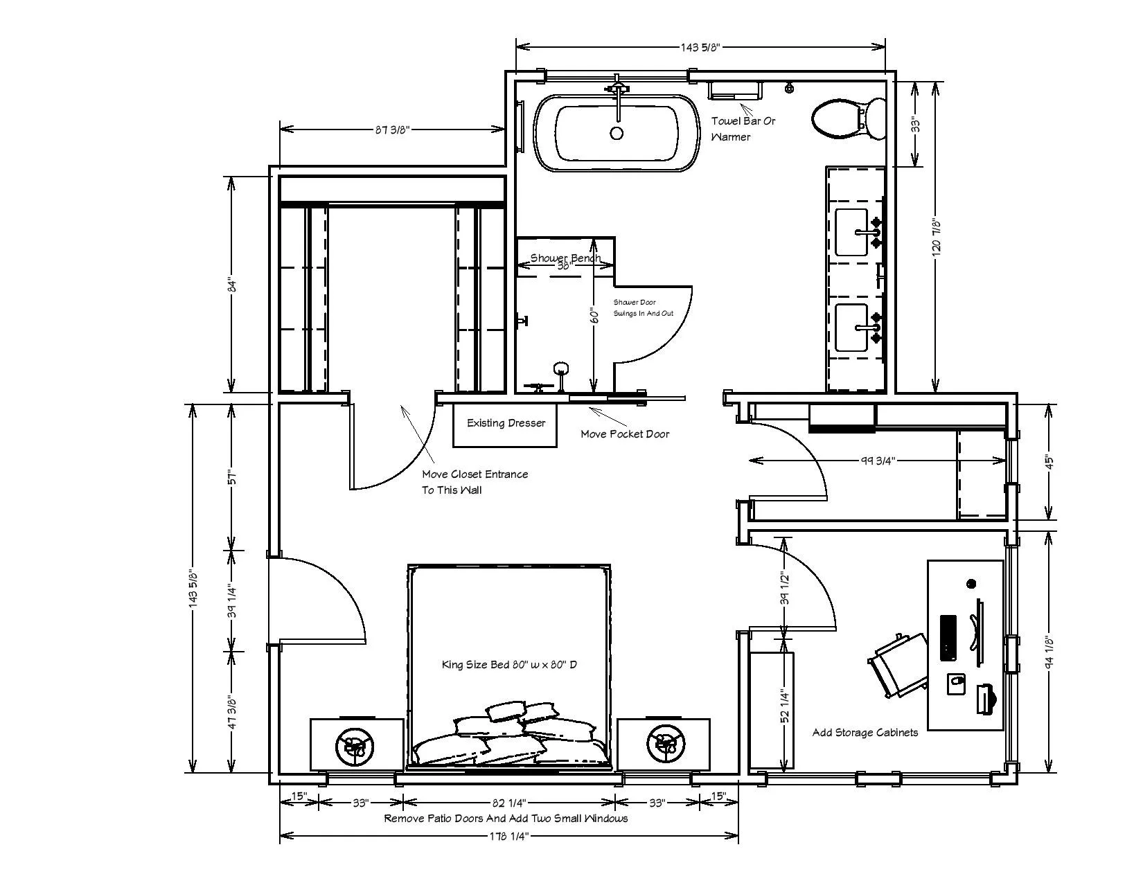
Option B

In this option, I moved the entrance to the walk-in closet, which allows me to add his and hers vanities in the bathroom. I removed the window in the small walk-in closet and added a pocket door to create more storage space.

Feedback