A Virtual Butler’s Pantry Design for a Texas Client

This butler’s pantry project is a wonderful example of how a virtual design process can still feel highly personal, detailed, and completely tailored to the client. Although my client lives in Texas and we worked together entirely online, we were able to create a space that feels polished, functional, and timeless.

I love projects like this because they show that great design does not depend on geography. With the right communication, measurements, photos, and design direction, I can help clients create spaces they truly love, no matter where they are located.

Here is what we started with:

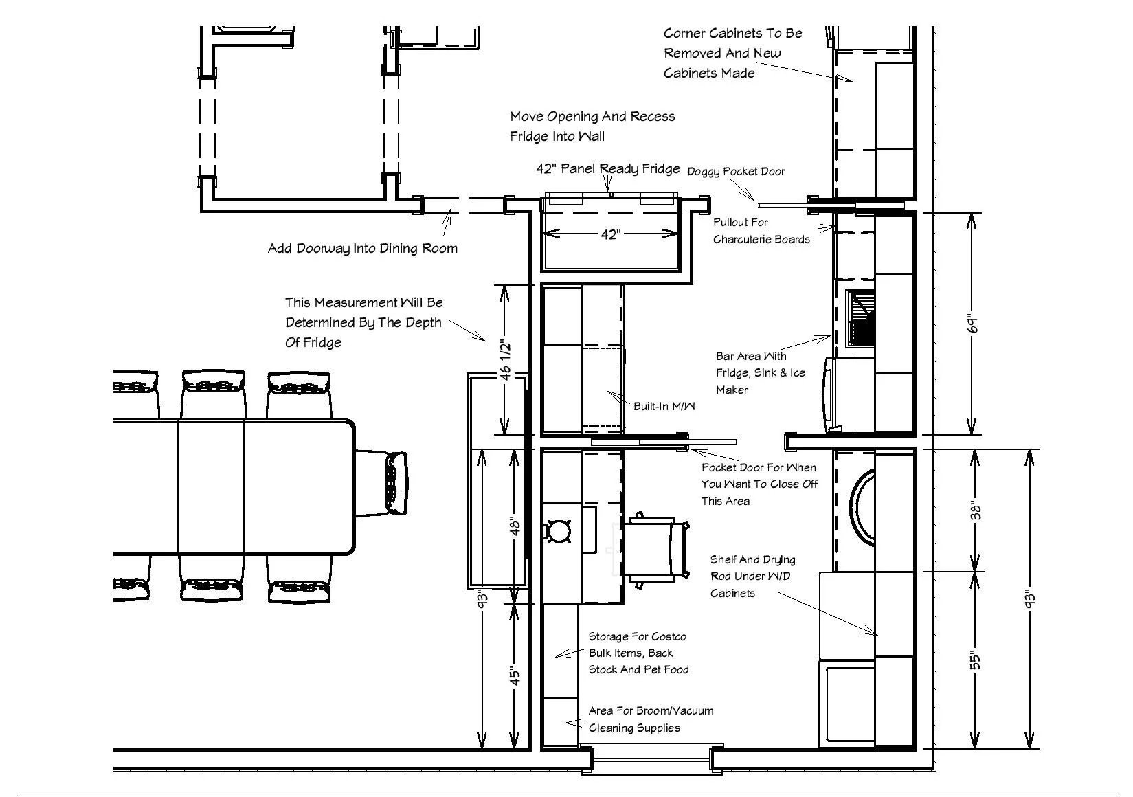
My client wanted to elevate her butler’s pantry into a space that felt more intentional and beautifully finished. Since this is a transitional area between the kitchen and the rest of the home, it needed to be both practical and visually cohesive. The laundry room had tons of wasted space, and with a large family and a pool, we needed to make the most of it. After a few options, here are the final plans.

My lovely client sent me a few picture to show how it turned out.

Whether you need help with a tricky floor plan or just colour choices, I offer a range of packages. My Consultation Package is a great way to get a little help or start-off a project, or you may need more detailed designs like my Kitchen Design Package.

Reach out if you have any questions!

Previous
Previous

Custom Exterior Paint Colors That Work Beautifully With Your Home

Next
Next

How Exterior Light Changes Your Paint Color (And How to Avoid a Surprise)